Printable DB
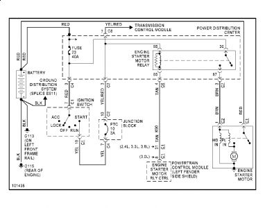
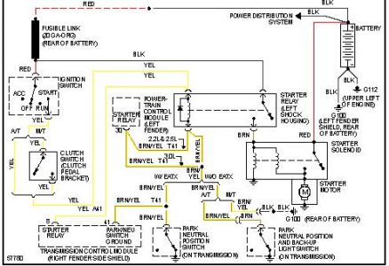
Plymouth Starter Wiring Diagram
why did the professional dog walker worksheet
trane xl16i compressor wiring diagram
web developer contract template
wedding invitation and rsvp templates
von duprin 9975 template
unlabeled blank larynx diagram
travel brochure sample
tampa bay rays schedule 2019 printable
Image Result For Mopar Starter Relay Wiring Diagram Mopar
No Crank No Start Chrysler Product Ricks Free Auto
Electrical Diagrams For Chrysler Dodge And Plymouth Cars
Plymouth Starter Wiring Diagrams Wiring Library
1993 Plymouth Sundance Starter Electrical Problem 1993
Plymouth Remote Starter Diagram Wiring Diagram
1956 1965 Plymouth Wiring The Old Car Manual Project
Wrg 1056 1968 Road Runner Starter Wiring Diagram Schematic
Repair Guides
1969 Dodge Starter Wiring Schematics Online
1932 Plymouth Wiring Diagram Wiring Diagrams
Wiring Diagram Chrysler Starter Relay Technical Diagrams
1938 Plymouth Car Color Wiring Diagram
1983 Plymouth Scamp Gt Rewiring After Electrical Fire Page 2
Plymouth Start Wiring Diagram Schematics Online
Chrysler Dodge Plymouth Electronic Ignition Control
1966 Dodge Wm300 4 X 4 Truck Starter Wiring Hot Rod Forum
Radio Wiring Diagram Fan Breeze 2 Starter At Home
Solved Where Is The Starter Located Fixya
Repair Guides
My 1929 Plymouth Model U Chet
Source :
pinterest.com
Popular Posts
5 3 Vortec Crate Engine With Wiring Harnes Free
Blank Wedding Anniversary Invitation Template
1968 Chevy C10 Fuse Box
Best Resignation Letter Samples Free
Basic Inventory List Template
1999 Chevy Blazer Engine Diagram
Beginner Math Worksheets
2012 Jettum Radio Wiring Diagram
Baby Pool Template
Colleague Professional Reference Letter Template
1998 Nissan Sentra Wheel
2001 Jeep Cherokee Wiring Harnes
1995 Dodge Ram 1500 Stereo Wiring Pin Diagram
Boat Bill Of Sale Template Free Pdf Canada
Communication Strategy Communication Plan Template Word
2016 Ford Mustang Fuse Diagram
Blank Restaurant Menu Template Word
88 Jeep Wrangler Wiring Diagram
2000 Dodge Stratu Engine Diagram
Animal Walk Cards Free Printable
2004 Pontiac Gto Wiring Diagram Schematic
2001 Mitsubishi Diamante Fuse Box Diagram
2000 Windstar Wiring Diagram
Articles Of Incorporation Florida Search
2008 F250 6 4 Fuse Box
70 Mustang Wiring Schematic
Bosch Fuel Filter Basis
Boat Stereo Amp Wiring Diagram
2014 Polari Rzr 800 Wiring Diagram
2018 Chevy Colorado Trailer Wiring Diagram
95 Maxima Fuse Diagram
Blank Printable Mother S Day Coupon Template
Classifying Polygons Worksheet
Blank Program Logic Model Template
Collection Letter Sample Pdf
Bartending Contract Template
Centrifugal Switch In Single Phase Motor
Angular Component Template Example
Best Printable Coupons
Asq Certification Exam Pass Rates
2005 Chevy Colorado Blower Motor Wiring Diagram
Birthday Chalkboard Photoshop Template
Business Formal Request Letter Format
2002 Suzuki Xl7 Fuse Box
Avery Worksaver 8 Tabs Template
Chevy Equinox Interior Fuse Box Diagram
Basic Consulting Agreement Template
1990 F350 Fuse Box Diagram
2006 Honda Cr V Engine Diagram
Certificate In Theology Maynooth
Box Certificate Stamp Explained
05 Dodge Charger Wiring Schematic
A Job For Life Biology Worksheet
96 Well Plate Template Word
Cfcc Certificate Programs